OPEN FOR BIDDING! Beautiful 3BR/2BA Home on Double Lot Near School Section Lake in Dousman

BID NOW!

We are proud to offer this charming Dousman home with lake access at auction, in partnership with Villa Realty.

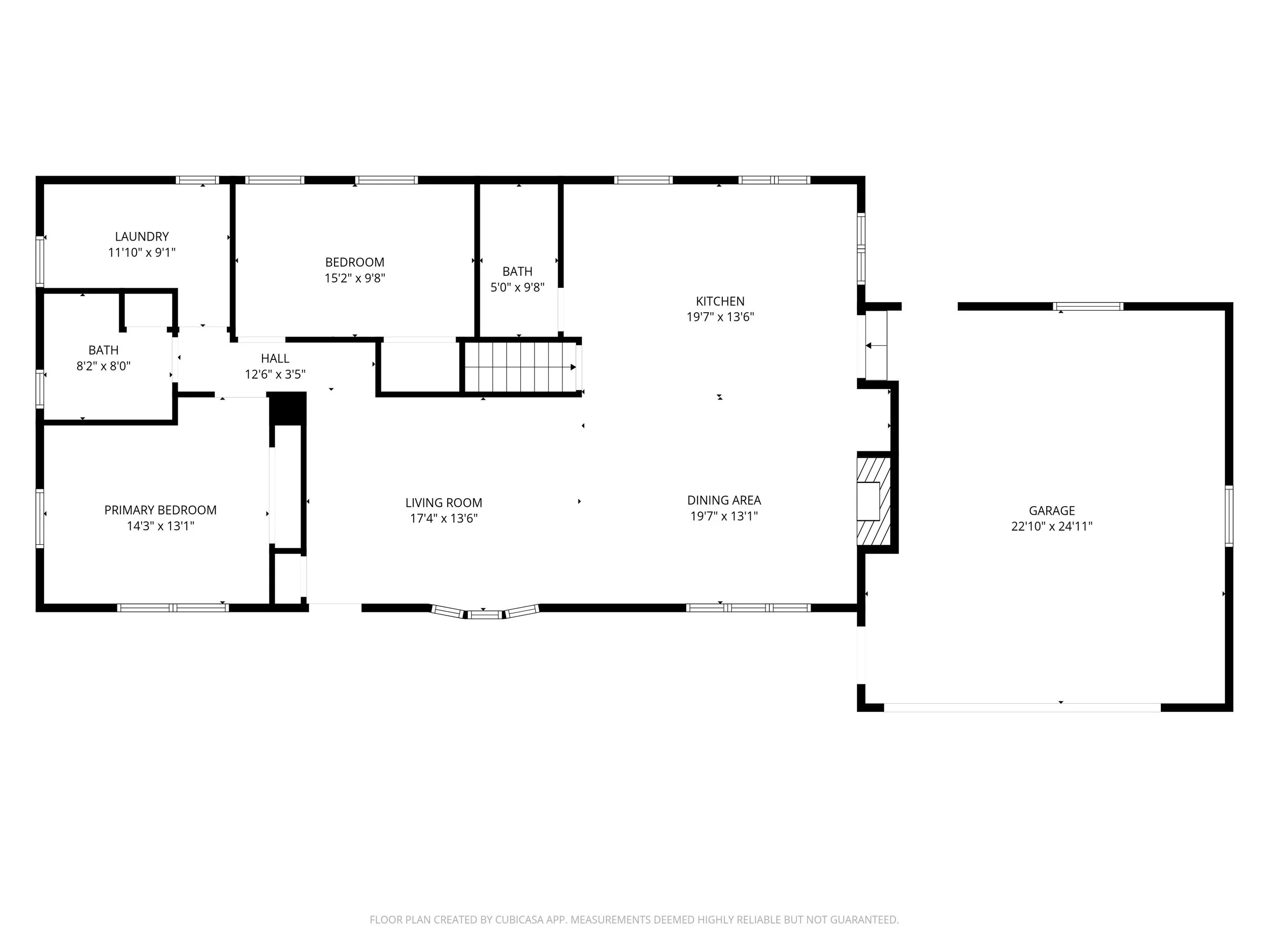
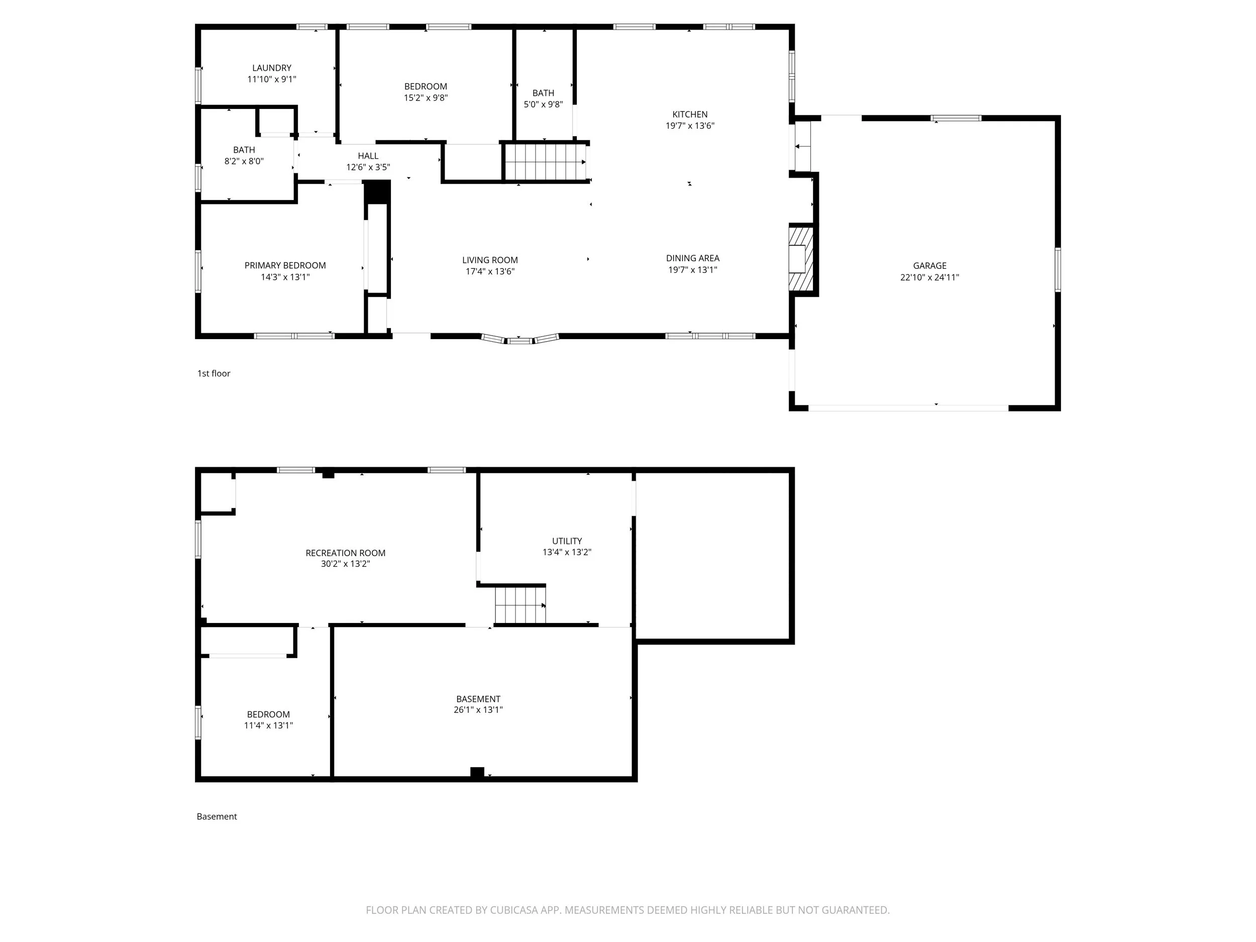
Set on an expansive double lot in a quiet setting just a short walk to School Section Lake, this fully renovated 3-bedroom, 2-bath home seamlessly blends modern luxury with timeless charm. The open-concept layout is filled with natural light and features new hardwood floors throughout. At the center of the home is a stunning gourmet kitchen featuring a large island, butcher-block countertops, stainless-steel appliances, and a built-in microwave drawer, perfect for both everyday living and entertaining.

The dining area is anchored by an electric fireplace and custom built-in shelving, flowing seamlessly into a spacious living room designed for comfort and connection. Both bathrooms have been beautifully redesigned, and the main floor laundry adds everyday convenience.

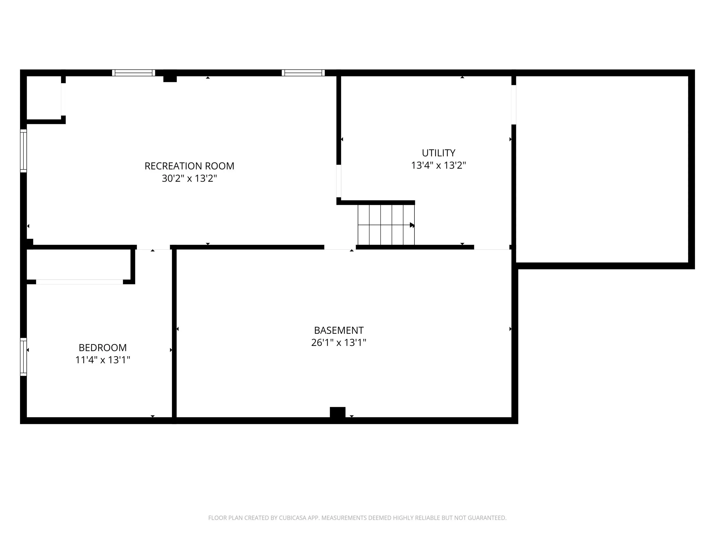
The finished lower level expands your living space with an additional bedroom with egress window, a workshop, and ample storage. Outside, the property truly stands out with its expansive yard and the rare benefit of four garage spaces, ideal for vehicles, lake toys, or hobbyists.

This is a move-in-ready opportunity offering space, style, and location, ready to be enjoyed by its next owner!

A 6% buyer’s premium applies and will be added to the final high bid to determine the total purchase price. This is a non-absolute auction, and the property is being sold subject to the seller's confirmation.


Contact Jackson Villarreal at (262) 339-5696 or at jackson@rrealhomes.com for a private showing, additional information, or to learn more about selling your home, vacant land, or business property at auction.


Property Address:

W377S3527 School Section Lake Dr  Dousman, WI 53118

OPEN HOUSES:

Saturday, April 18 | 11:00 AM – 1:30 PM
Saturday, April 25 | 11:00 AM – 1:00 PM

BIDDING OPENS APRIL 22ND AT 5:00 PM

BIDDING ENDS MAY 5TH AT 5:00 PM

Link To Register For This Auction



Next
Next

OPEN FOR BIDDING! DONAHUE ESTATE NO RESERVE FARM AUCTION